Architekten & Ingenieure

Baugrundstücke Cala Llamp

Baugrundstück Cala Llamp)

 

Baugrundstück in Cala Llamp

Die Lage: Die Bucht Cala Llamp ist die zweitgrößte neben dem Naturhafen von Port Andraxt. Sie ist überwiegend mit anspruchsvollen Einfamilienhäusern bebaut. Kleine Felsenstrände bieten Bademöglichkeiten in Glasklarem Wasser. Der alte Ortskern von Port Andraxt ist ca. 1500m entfernt. Bis zu dem neuen Golfplatz von Camp de Mar benötigt man ca. 4 Autominuten.
Umgebung von Cala Llamp:
Puerto de Andratx ist einer der besten und spektakulärsten Naturhäfen Mallorcas, umgeben von bildschönen Buchten namens Cala Llamp, Cala Moragues und Cala d’Egos. Diese moderne Hafenortschaft, mit ihren außerordentlichen Villen und Wohnanlagen und einigen Luxushotels, hat sich, dank der nautischen Aktivitäten, von einem kleinen, unscheinbaren Fischerdorf zu einem wichtigen und exklusiven Touristenort entwickelt. Der Yachthafen Club de Vela, mit seinen ca. 500 Liegeplätzen, ist einer der best ausgestatteten der Balearen Inseln. Auf der Mole befindet sich die Fischhandelsbörse, in welcher der täglich frische Fang der Fischer verkauft wird. Im Hafen existieren noch einige Monumente von großem historischen und architektonischen Interesse, wie Sant Carles auf la Mola oder die Schutztürme. Auf der Uferpromenade befinden sich diverse interessante Geschäfte und exquisite Restaurants mit Terrassen, die den Besucher mit wunderbarem Meerblick erfreuen.

 

Bilder Baugrundstück Cala Llamp

Bilden Sie Vermögen mit Immobilien
Mit einem traumhaften Blick in die Bucht von Cala Llamp

Preise Baugrundstücke Cala Llamp

Solar 8 - 1.037 qm zu einem Preis von: 350.000 Euro
Solar 9 - 1.012 qm zu einem Preis von: 341.000 Euro
Solar 10 - 1.001 qm zu einem Preis von: 337.000 Euro
Solar ( 9 + 10 ) 2.013 qm zu einem Preis von : 560.000 Euro

Vorschlag MODERNE VILLA Cala Llamp

Front : Ansicht vom Pool und Garten
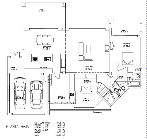
Erdgeschuss : Wohn/Nutzfläche von 198,60 qm
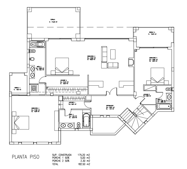
Obergeschoss : Gesamta Wohn / Nutzfläche von 182,50 qm
Ansicht von links
Ansicht von rechts
Strassenfront
Exklusive Villa im modernen Baustil, mit gesamt 381,10 qm Wohn / Nutzfläche!!!!