219 Chalet in Cala Pi Es Pas
Chalet 219, Neubau, auf einem 841 qm grosses Grundstück, in Urbanisacion Cala Pi Vallgornera
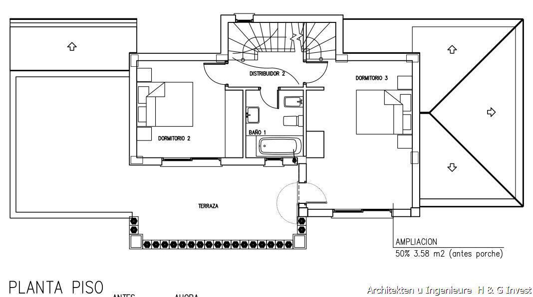
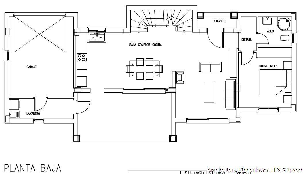
Süd - Lage, Sonne pur, und einer Wohn / Nutzfläche von 146,39 qm.
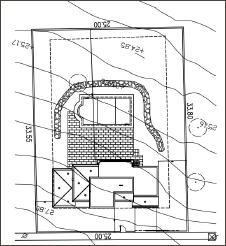
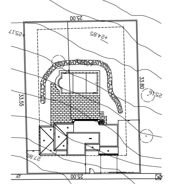
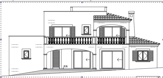
Ein Haus, in mediteranem Baustil, 2 geschossig mit Meerblick, 3 Schlafzimmer, 2 Bädern, einer eingebauten Küche (ohne Geräte) , Klimaanlage k/w, einer Garage, Zufahrtstor elektrisch, Garagentor elektrisch, und einem Pool.
Ausserdem verfügt das Chalet über eine ca. 30 qm grosse Dachterrasse.
Das Objekt wird in Kürze fertiggestellt, und kann schlüsselfertig übergeben werden.
Kaufpreis reduziert 365.000 Euro
Die Region CALA PI/Vallgornera liegt an der Südküste von Mallorca, im Gemeindegebiet von Llucmajor und ist laut Medienberichten einer der künftigen TOP-Standorte.
Die kleine, romantische Sandstrandbucht ist eine vor allem bei Seglern beliebte Bade- und Ankerbucht. Sie vermittelt den Eindruck, als wäre sie vom „Zahn der Zeit des Massentourismusses“ verschont geblieben. Ruhe und weitgehende Unberührtheit zeichnen diese Region aus.
Die Badebucht von CALA PI mit ihrem in verschiedensten Blau- und Türkistönen schimmerndem Wasser. ist eine der schönsten Buchten, am Rande eines ausgedehnten Pinienwaldes, im Süden Mallorcas.
Es gibt auf Mallorca nicht viele Standorte, wie CALA PI, wenn für Ihr zweites Zuhause folgende Faktoren wichtig sind:
Küstenort – Palma- und Flughafennähe – abseits vom Massentourismus – Ruhe, Privatsphäre und Individualität.
Der Ort selber schlängelt sich mit seinen gepflegten Chalets und Villen am Meer entlang. Er verfügt über 3 kleine Supermärkte, 7 Restaurants, einige Bars, und im Club Cala Pi Nou wird das ganze Jahr über Entertainment geboten.
Für GOLFER die optimale Lage: Die MARRIOT Golf-Anlage SON ANTEM in Llucmajor mit ihren 2 Plätzen und der neue Golfplatz MAIORIS gegenüber der noblen Wohnregion PUIG DE ROS – ca. 15 km von Cala Pi in Richtung Palma gelegen - liegen nur 10 – 15 Autominuten entfernt. Ein weiterer Golfplatz entsteht derzeit im 12 km entfernt liegenden SA RAPITA.
Weitere Anziehungspunkte sind die Yachthäfen von S-TANYOL und SA RAPITA. In ca. 20 km Entfernung liegt der wohl schönste Natur-Badestrand Mallorcas – ES TRENC.
Sehr vorteilhaft ist auch die geographische Lage – in nur ca. 30 Minuten ist der Flughafen über eine gut ausgebaute, verkehrsarme Küstenstraße bzw. jetzt auch über die neue Autobahn ab Llucmajor zu erreichen.



















