sol 47me Villa mediterran
Ref.: sol 47me - in Cala Pi Vallgornera
Diese Villa im mediterranen Baustil für Individualisten wird in Cala Pi Vallgornera gebaut werden.
Die Bauweise ist 2 geschossig, mit Treppenaufgängen im Innenbereich bis hinauf zum Obergeschoss.
Das Gebäude hat eine grsamta Wohnfläche von 204,71 qm
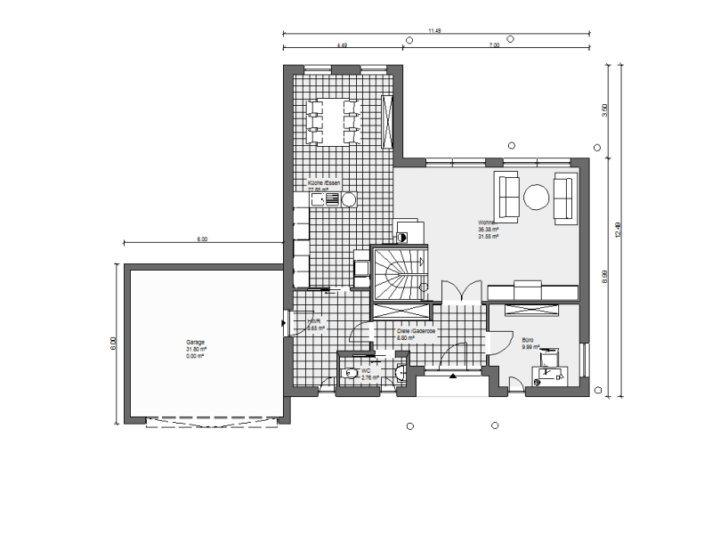
Im unteren Geschoss, mit 125,84 qm, ein WC, ein grosser Wohnraum nebst einer Küche mit Essbereich. Vom Wohn und vom Essbereich geht es auf die Terrasse und zum grossen Pool.
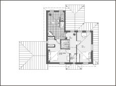
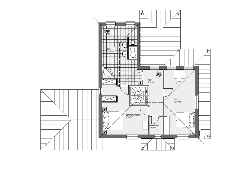
Der seperate Treppenaufgang geht es in die obere Etage, mit 78,87 qm, zu 2 geräumigen Schlafräumen und 1 grossen Bad.
Die Schlafräume haben einen Blick in den Garten zum Pool und zum Meer.( Gezeichnete Vordächer können auch als Terrasse gebaut werden )
Die Bauweise erlaubt es, dass jegliche Wohnräume hell und lichtdurchflutet sind.
Das Gebäude ist mit einer Fussbodenheizung ausgestattet und verfügt über eine Klimaanlage k / w .
Kunststofffenster mit Isolierverglasung sorgen dafür, dass die Wohlfühlwerte in den Räumlichkeiten erfüllt werden.
Die Böden sind mit Fliesen belegt und die Treppenaufgänge werden mit Marmor belegt.
Grundstücksgrössen und verschiedene Lagen sind wählbar 600 qm bis 1.300 qm.
Der Preis für dieses Hausmodell ab 445.000 Euro schlüsselfertig, inclusiv der Planungs- und Genehmigungskosten.
Insel-Lage Cala Pi - Vallgornera
Die Region CALA PI/Es Pas liegt an der Südküste von Mallorca, im Gemeindegebiet von Llucmajor und ist laut Medienberichten einer der künftigen TOP-Standorte.
Die kleine, romantische Sandstrandbucht ist eine vor allem bei Seglern beliebte Bade- und Ankerbucht. Sie vermittelt den Eindruck, als wäre sie vom „Zahn der Zeit des Massentourismusses“ verschont geblieben. Ruhe und weitgehende Unberührtheit zeichnen diese Region aus.
Die CALA PI mit ihrem in verschiedensten Blau- und Türkistönen schimmerndem Wasser ist eine der schönsten Buchten am Rande eines ausgedehnten Pinienwaldes im Süden Mallorcas.
Es gibt auf Mallorca nicht viele Standorte, wie CALA PI, wenn für Ihr zweites Zuhause folgende Faktoren wichtig sind:
Küstenort – Palma- und Flughafennähe – abseits vom Massentourismus – Ruhe, Privatsphäre und Individualität.
Der Ort selber schlängelt sich mit seinen gepflegten Chalets und Villen am Meer entlang. Er verfügt über 3 kleine Supermärkte, 7 Restaurants, einige Bars, und im Club Cala Pi Nou wird das ganze Jahr über Entertainment geboten.
Für GOLFER die optimale Lage: Die MARRIOT Golf-Anlage SON ANTEM in Llucmajor mit ihren 2 Plätzen und der neue Golfplatz MAIORIS gegenüber der noblen Wohnregion PUIG DE ROS – ca. 15 km von Cala Pi in Richtung Palma gelegen - liegen nur 10 – 15 Autominuten entfernt. Ein weiterer Golfplatz entsteht derzeit im 12 km entfernt liegenden SA RAPITA.
Weitere Anziehungspunkte sind die Yachthäfen von S-TANYOL und SA RAPITA. In ca. 20 km Entfernung liegt der wohl schönste Natur-Badestrand Mallorcas – ES TRENC.
Sehr vorteilhaft ist auch die geographische Lage – in nur ca. 30 Minuten ist der Flughafen über eine gut ausgebaute, verkehrsarme Küstenstraße bzw. jetzt auch über die neue Autobahn ab Llucmajor, zu erreichen.
sol 47me - Grundrisse - Pläne - Ansichten
| Ansicht vom Pool und Garten ( SÜD - LAGE ) |
|
|
Strassenansicht |
| Ansicht Garten und Pool |
|
|
Seitenansicht Osten |
| Seitenansicht Westen |
|
|
Ansicht Strasse ( Norden ) |
| Grundriss EG |
|
|
Grundriss OG |
Geld richtig anlegen
| Eine Villa nach Ihren Wünschen und Vorstellungen zu einem TOP - Preis. | |
|
Hier bekommen Sie etwas für Ihr Geld. |
| Hier stimmt das Preis - Werteverhältnis |
|



















