sol 47b Villa modern
Ref.: sol 84 b in Cala Pi Vallgornera
Diese Villa im modernen Baustil wird in Cala Pi Vallgornera gebaut werden.
Die Bauweise ist 2 geschossig, mit Treppenaufgängen im Innenbereich bis hinauf zu der grossen Dachterrasse.
Das Gebäude hat eine grsamta Wohnfläche von 380 qm
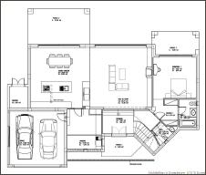
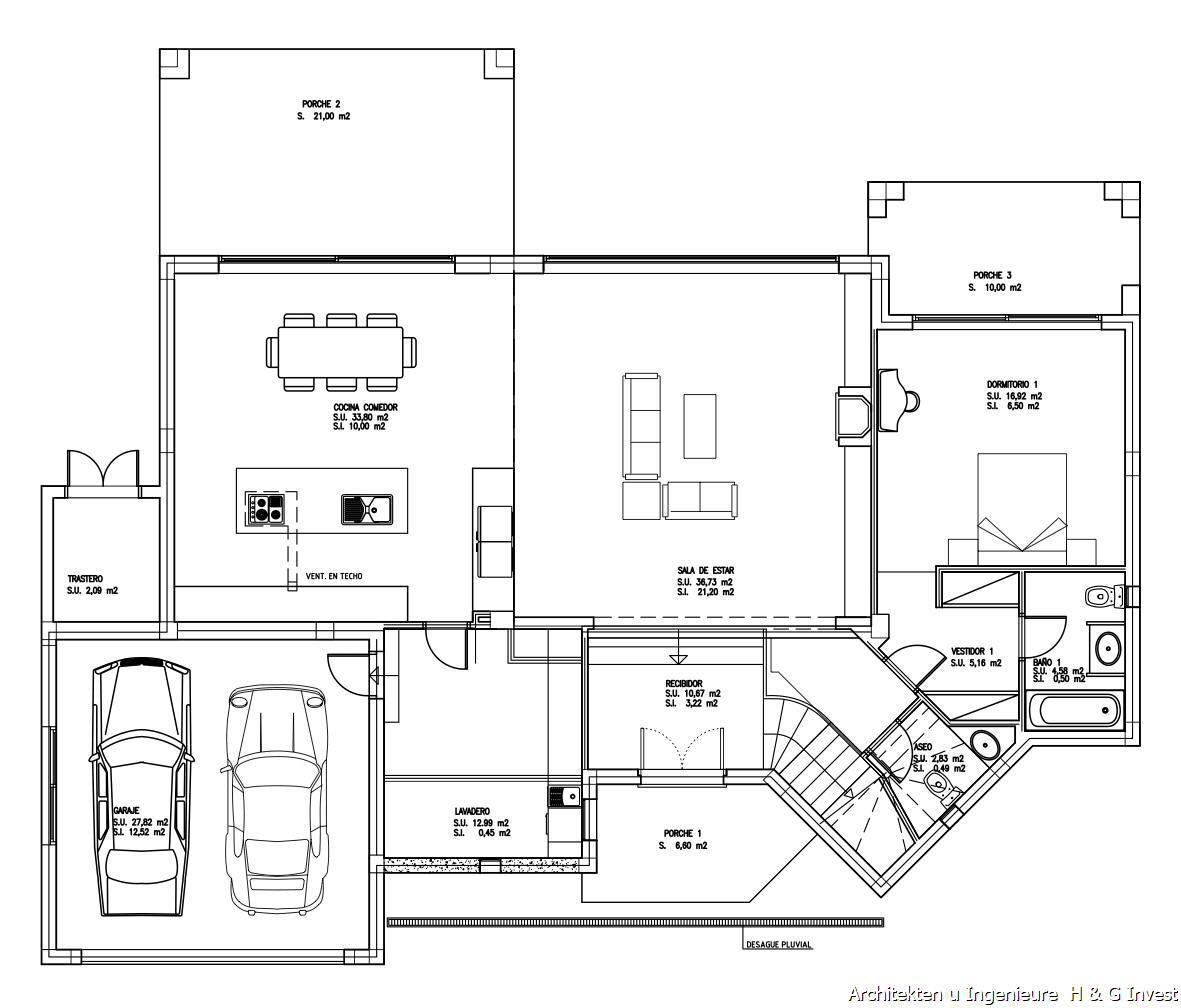
Im unteren Geschoss, mit 198 qm, befindet sich ein Schlafraum, ein Bad, 1 Gäste WC, eine grosse Garage, ein Wirtschaftsraum und ein grosser Wohnraum mit einer integrierten Küche. Vom Schafraum und vom Wohnraum geht es auf die zum Teil überdachten Terrassen und zum Pool.
Über den seperaten Treppenaufgang geht es in die obere Etage, mit 182 qm, zu weiteren 3 Schlafräumen und 3 Bädern en Suite.
Alle Schlafräume haben einen Ausgang auf verschiedene Terrassen mit Blick in den Garten zum Pool und zum Meer.
Der von dieser Ebene weiterführende Treppenaufgang führt über einen Korridor zur Dachterrasse.
Die Bauweise erlaubt es, dass jegliche Wohnräume hell und lichtdurchflutet sind.
Das Gebäude ist mit einer Fussbodenheizung ausgestattet und verfügt über eine Klimaanlage k / w .
Kunststofffenster mit Isolierverglasung sorgen dafür, dass die Wohlfühlwerte in den Räumlichkeiten erfüllt werden.
Die Böden sind mit Fliesen belegt und die Treppenaufgänge werden mit Marmor belegt.
Grundstücksgrössen und verschiedene Lagen sind wählbar 1.100 qm bis 1.300 qm.
Der Preis für dieses Hausmodell ab 898.000 Euro schlüsselfertig, inclusiv der Planungs- und Genehmigungskosten.
Insel-Lage Cala Pi - Vallgornera
Die Region CALA PI/Es Pas liegt an der Südküste von Mallorca, im Gemeindegebiet von Llucmajor und ist laut Medienberichten einer der künftigen TOP-Standorte.
Die kleine, romantische Sandstrandbucht ist eine vor allem bei Seglern beliebte Bade- und Ankerbucht. Sie vermittelt den Eindruck, als wäre sie vom „Zahn der Zeit des Massentourismusses“ verschont geblieben. Ruhe und weitgehende Unberührtheit zeichnen diese Region aus.
Die CALA PI mit ihrem in verschiedensten Blau- und Türkistönen schimmerndem Wasser ist eine der schönsten Buchten am Rande eines ausgedehnten Pinienwaldes im Süden Mallorcas.
Es gibt auf Mallorca nicht viele Standorte, wie CALA PI, wenn für Ihr zweites Zuhause folgende Faktoren wichtig sind:
Küstenort – Palma- und Flughafennähe – abseits vom Massentourismus – Ruhe, Privatsphäre und Individualität.
Der Ort selber schlängelt sich mit seinen gepflegten Chalets und Villen am Meer entlang. Er verfügt über 3 kleine Supermärkte, 7 Restaurants, einige Bars, und im Club Cala Pi Nou wird das ganze Jahr über Entertainment geboten.
Für GOLFER die optimale Lage: Die MARRIOT Golf-Anlage SON ANTEM in Llucmajor mit ihren 2 Plätzen und der neue Golfplatz MAIORIS gegenüber der noblen Wohnregion PUIG DE ROS – ca. 15 km von Cala Pi in Richtung Palma gelegen - liegen nur 10 – 15 Autominuten entfernt. Ein weiterer Golfplatz entsteht derzeit im 12 km entfernt liegenden SA RAPITA.
Weitere Anziehungspunkte sind die Yachthäfen von S-TANYOL und SA RAPITA. In ca. 20 km Entfernung liegt der wohl schönste Natur-Badestrand Mallorcas – ES TRENC.
Sehr vorteilhaft ist auch die geographische Lage – in nur ca. 30 Minuten ist der Flughafen über eine gut ausgebaute, verkehrsarme Küstenstraße bzw. jetzt auch über die neue Autobahn ab Llucmajor, zu erreichen.
Sol 84 b : Grundrisse - Pläna - Ansichten
|
|
|
|
|
|
|
|
|
Grundstücke in 2. Linie ab 1.100 qm zur Auswahl |
Geld richtig anlegen
| Eine Villa nach Ihren Wünschen und Vorstellungen zu einem TOP - Preis. | |
|
Hier bekommen Sie etwas für Ihr Geld. |
| Hier stimmt das Preis - Werteverhältnis |
|
















