214Aexcl-mod Exclusive Neubau Villa in 1.Linie
214 A excl-mod exclusive Neubau Luxus - Villa in Cala Pi Vallgornera
Hier ist auf einem nach Süden ausgerichtetem Anwesen, diese Villa im modernen Baustil, geplant.
Objektbeschreibung :
Eine Baugenehmigung für diese exclusive Villa liegt vor. Mit dem Bau kann sofort begonnen werden.
Voraussichtliche Bauzeit für dieses grosszügige Gebäude ca. 14 Monate. Gestaltungswünsche des etwaigen Eigentümers können bei der Bauausführung noch berücksichtigt werden!
- Das ebene Grundstück in einer Top Lage direkt am Meer, erlaubt von der Ausbaukapazität her eine Erweiterung der genehmigten Wohnfläche von derzeit 617 qm, auf 760 qm.
Das südorientierte Filetgrundstück, wird gärtnerisch mit mediterranen Pflanzen angelegt, wird automatisch bewässert und bietet, neben einem einzigartigen Meerblick, viel Privatspähre. Darüberhinaus stehen gemütliche freie und überdachte Terrassen mit Schwimmingpool und angrenzenden begrünten und mit Naturstein gestalteten Freiflächen, in einer Ebene, zur Verfügung.
Der geplante Barbecue-Bereich rundet die Wohlfühlatmosphäre im Aussenbereich ab.
Die Exclusivität dieser Immobilie wird ein einzigartiges Wohlfühl- Ambiente vermitteln.
Das Preis-Leistungsverhältnis kann nur mit SEHR GUT benotet werden.
Diese komfortable Villa lässt keine Wünsche offen, und wenn es noch Wünsche gibt, werden diese aufgenommen und realisiert.
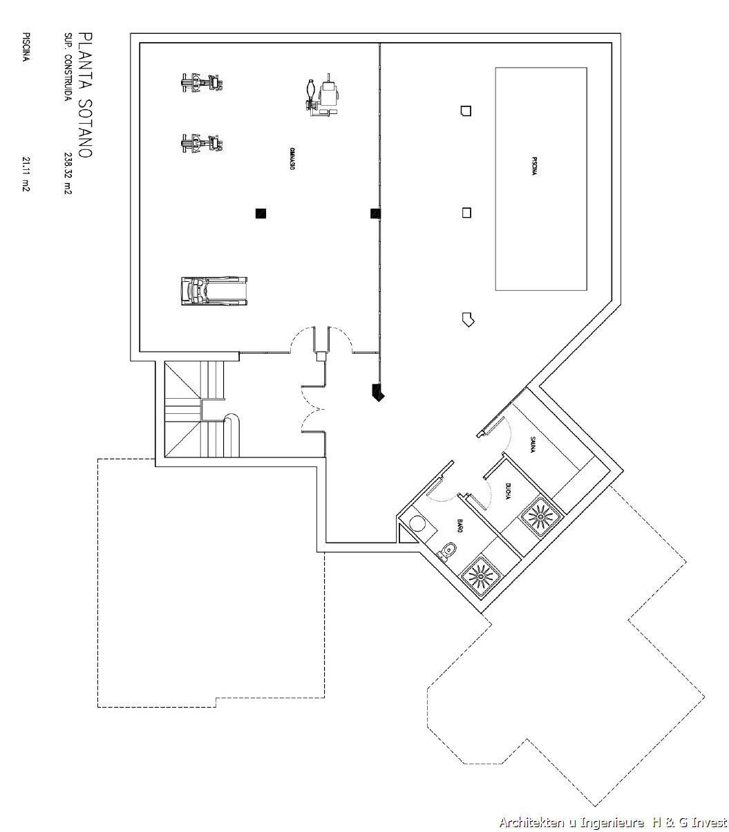
Im 182 qm grossen Untergeschoss ( Sotano ),
modern belichtet und beheizt, besteht aus einem Poolbereich ( indoor Pool) einem Ruheraum, einem Wellnesbereich, einem Gym-Raum, einer Sauna und einem Technik-Raum.
Raumaufteilung im Erdgeschoss:
Großes Entrée mit überdachtem Porche, großer Wohnbereich mit Gas Kamin sowie einem Essbereich,
Marken - Küche,
Hauswirtschaftsraum,
einem seperatem Bad,
einem Büroraum,
dem Master-Bedroom mit großem Bad en Suite und einem Ankleidezimmer,
und einem Gäste-WC,
einer großen überdachten Südterrasse mit grosszügigem Zugang zum Überlauf - Pool mit freiem Blick auf das Meer und zur Vogelschutzinsel Cabrera, und einer Doppel- Garage.
Raumaufteilung Obergeschoss:
- Suite mit Wohnbereich und überdachter Meerblickterrasse
- großes Schlafzimmer mit Bad en suite und Zugang auf eine große, offene Meerblickterrasse
- Schlafzimmer mit Bad en suite und überdachter Meerblickterrasse.
Die gehobene Ausstattung enthält u.a.:
- Doppelschaliges Mauerwerk mit einer innenliegenden Isolierung
- Fußbodenheizung
- Moderne Wärmepumpen für alternative Energeiquellen
- Klimaanlage w/k
- Fußböden und Bäder in Marmor und mit hochwertigen Fliesen (Porcellanose)
- Warmwasserversorgung über Solar
- Treppenbelag: Marmor, Granit oder adäquaten Materialien
- Fenster und Außentüren werden mit Naturstein (Santanyi) eingefasst
- Energiespar - Fenster und - Außentüren aus Kunststoff mit schlagfester Isolierverglasung
- nach Din-Normen - Rollöden elektrisch oder alternativ, Persianas (Blendläden) aus kunststoffbeschichtetem Aluminium
- offener Kamin im Salon
Lagebeschreibung: Diese Luxusvilla wird auf einem 1.600 qm großem Grundstück, mit MEERZUGANG, gebaut, und zählt hier an der Steilküste zu den letzten Grundstücken mit solch einer seltenen Gelegenheit.
Vom eigenen Garten über Treppenstufen die Steilküste hinunter zum Meer ist eine absolute Rarität.
Details:
Grundstück 1.600 qm,
Wohnfläche 617 qm ( auf 765 qm erweiterbar) auf 3 Etagen
Aufteilung:
Wohnzimmer, seperate Küche, Esszimmer, Wirtschaftsraum, Abstellraum, Gästetoilette, Fittnesraum, Sauna, Pool innen,
Schlafzimmer 4, Ankleideruam, Bäder 4 ( En Suite )
Aussenanlagen:
Freiterrassen 170 qm, überdachte Terrassen 79 qm, Dachterrasse 125 qm, Garten, automatische Bewässerung, Schwimminpool 81 qm, Doppelgarage 45 qm, Barbecue
Lage:
1. Meereslinie, Zugang zum Meer über eine Treppe , ( Steilküste an den Klippen )
Fenster:
Kunststoffenster WEKA - Profil oder gleichwertiges, thermische und Sicherheits - Verglasung.
Haustechnik:
Einbauküche, Einbauschränke, Tel.: Anschlüsse, Alarmanlage, SAT - Anlage, automatische Tore, Video Gegensprechanlage,
Solaranlage, Solarthermie
Heizung:
Fussbodenheizung über Wärmepumpe, Photovoltaik unterstützt,
Böden:
Marmor oder Vergleichbare Materialien
Warmwasser:
Elektrisch, mit solarthermische Unterstützung
Haussicherung:
Videoüberwachte Anlage mit Fernüberwachung und Steuerung
Klima ja ( k / w )
Preis 3.980.000 Euro
214Aexcl-mod Animation geplante Villa
|
|
|
|
|
|
|
|
|
|
|
|
|
214Aexcl-mod Villa - Grundrisse - Pläne
| Ansicht vom Meer |
|
|
Ansicht vom Süd/Westen |
|
|
|
|
| Lageplan |
|
|
Ebenerdiges - Geschoss |
| Oberes - Geschoss |
|
| Keller - Geschoss mit beheiztem Pool, Wellnes - Raum, Gym - Raum, Sauna, Raum für Technik innen und aussen |
|
214Aexcl Fotos vom Grundstück
Insel-Lage Cala Pi - Vallgornera
Die Region CALA PI/Vallgornera liegt an der Südküste von Mallorca, im Gemeindegebiet von Llucmajor und ist laut Medienberichten einer der künftigen TOP-Standorte.
Die kleine, romantische Sandstrandbucht ist eine vor allem bei Seglern beliebte Bade- und Ankerbucht. Sie vermittelt den Eindruck, als wäre sie vom „Zahn der Zeit des Massentourismusses“ verschont geblieben. Ruhe und weitgehende Unberührtheit zeichnen diese Region aus.
Die CALA PI mit ihrem in verschiedensten Blau- und Türkistönen schimmerndem Wasser ist eine der schönsten Buchten am Rande eines ausgedehnten Pinienwaldes im Süden Mallorcas.
Es gibt auf Mallorca nicht viele Standorte, wie CALA PI, wenn für Ihr zweites Zuhause folgende Faktoren wichtig sind:
Küstenort – Palma- und Flughafennähe – abseits vom Massentourismus – Ruhe, Privatsphäre und Individualität.
Der Ort selber schlängelt sich mit seinen gepflegten Chalets und Villen am Meer entlang. Er verfügt über 3 kleine Supermärkte, 7 Restaurants, einige Bars, und im Club Cala Pi Nou wird das ganze Jahr über Entertainment geboten.
Für GOLFER die optimale Lage: Die MARRIOT Golf-Anlage SON ANTEM in Llucmajor mit ihren 2 Plätzen und der neue Golfplatz MAIORIS gegenüber der noblen Wohnregion PUIG DE ROS – ca. 15 km von Cala Pi in Richtung Palma gelegen - liegen nur 10 – 15 Autominuten entfernt. Ein weiterer Golfplatz entsteht derzeit im 12 km entfernt liegenden SA RAPITA.
Weitere Anziehungspunkte sind die Yachthäfen von S-TANYOL und SA RAPITA. In ca. 20 km Entfernung liegt der wohl schönste Natur-Badestrand Mallorcas – ES TRENC.
Sehr vorteilhaft ist auch die geographische Lage – in nur ca. 30 Minuten ist der Flughafen über eine gut ausgebaute, verkehrsarme Küstenstraße bzw. jetzt auch über die neue Autobahn ab Llucmajor zu erreichen.


































