Architekten & Ingenieure

146B y 147plus exclusive Neubau Villa

146By147plus Seite 1 aus der Werbung

146By147 Exclusive Neubau Villa in 1.Meereslinie

146B y 147plus exclusive Neubau Villa der Luxusklasse in Cala Pi Vallgornera
Hier ist auf einem nach Süden ausgerichtetem Anwesen, diese außergewöhnliche individuelle Villa im mediterranen Baustil, geplant, plus einem Gästehaus.
Objektbeschreibung Villa:
Eine Baugenehmigung für diese exclusive Villa ist beantragt. Mit dem Bau kann in Kürze begonnen werden.
Voraussichtliche Bauzeit für dieses grosszügige Gebäude ca. 16 Monate. Gestaltungswünsche des etwaigen Eigentümers können bei der Bauausführung noch berücksichtigt werden!

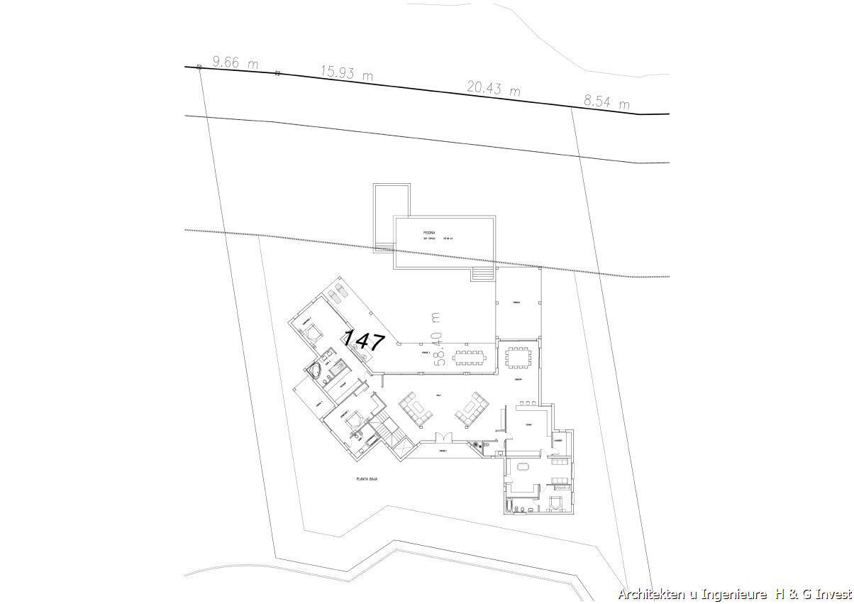
- Das ebene 2.658 qm grosse Grundstück in einer Top Lage direkt am Meer, ermöglicht es ein Gebäude mit einer Wohnfläche von derzeit 1349 qm, zu erstellen.
Das südorientierte Filetgrundstück, wird gärtnerisch mit mediterranen Pflanzen angelegt, wird automatisch bewässert und bietet, neben einem einzigartigen Meerblick, viel Privatspähre. Darüberhinaus stehen gemütliche freie und überdachte Terrassen mit Schwimmingpool und angrenzenden begrünten und mit Naturstein gestalteten Freiflächen, in einer Ebene, zur Verfügung.
Der geplante Barbecue-Bereich rundet die Wohlfühlatmosphäre im Aussenbereich ab.
Die Exclusivität dieser Immobilie wird ein einzigartiges Wohlfühl- Ambiente vermitteln.
Das Preis-Leistungsverhältnis kann nur mit SEHR GUT benotet werden.
Diese aussergewühnliche Villa lässt keine Wünsche offen, und wenn es noch weitere Wünsche gibt, werden diese aufgenommen und realisiert.

Das 567 qm grosse Untergeschoss ( Sotano ),

 modern belichtet und beheizt, besteht aus einem Poolbereich ( indoor Pool), einem Whirlpool, einem Ruheraum, einem Wellnesbereich, einem Fitness-Raum ( Ergometer, Laufband, Rudergerät und einem Multistations - Kraftgerät ), einem Bad mit Körperschall - Magnet - und Klangwellenmassage, einer Sauna, einem römischen Dampfbadund einem Billard - Raum, einem Technik-Raum und einer geräumigen Garage für mehrere PKW's.

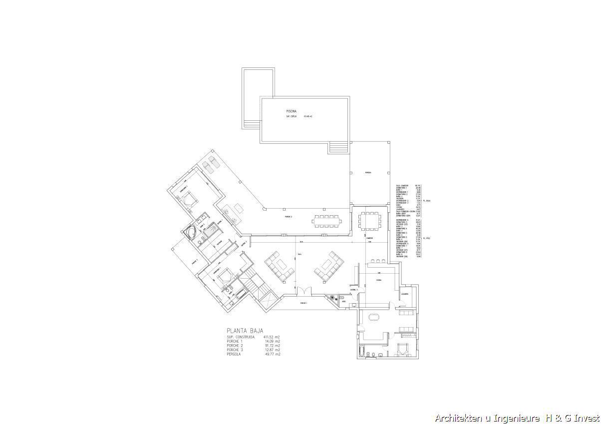
Raumaufteilung im 411 qm grossen Erdgeschoss:
- Großes Entrée mit überdachtem Porche, großer Wohnbereich mit Gas Kamin sowie einem Essbereich,

- Marken - Küche,
Hauswirtschaftsraum,

- einer seperaten Wohnung ( Bedienstete ),

- einem Büroraum oder Gästezimmer mit Bad en Suite,

- dem Gästezimmer mit großem Bad en Suite und einem Ankleidezimmer,

- einem Gäste-WC,

- einer großen überdachten Südterrasse mit grosszügigem Zugang zum Überlauf - Pool mit freiem Blick auf das Meer und zur Vogelschutzinsel Cabrera.


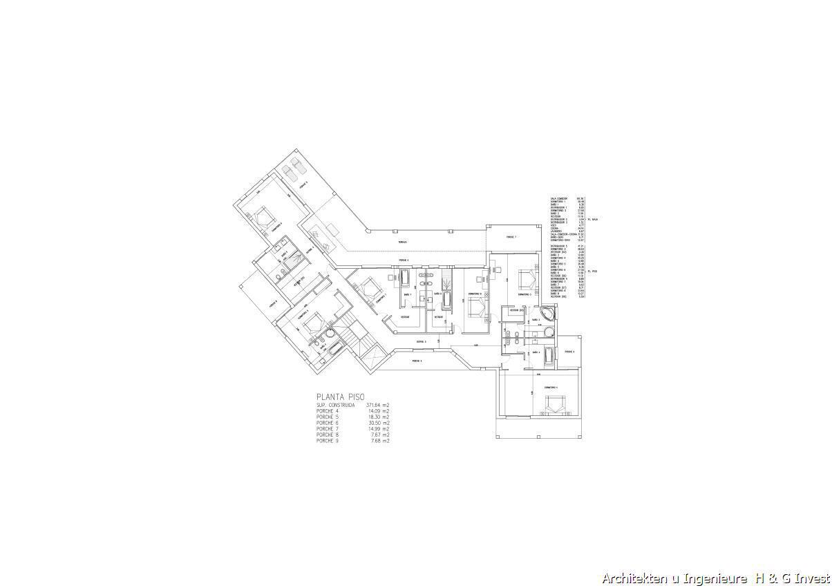
Raumaufteilung im Obergeschoss:


- Überdachte Sonnenterrasse

- 1 Suite mit Wohnbereich und überdachter Meerblickterrasse

- 4 Schlafzimmer mit Bad en suite und Zugang auf eine große, offene Meerblickterrasse

- 1 Schlafzimmer mit Bad en suite und überdachter Terrasse.

- 93 qm überdachter Terrassen

Die gehobene Ausstattung enthält u.a.:
- Doppelschaliges Mauerwerk mit einer innenliegenden Isolierung

- Fußbodenheizung

- Moderne Wärmepumpen für alternative Energeiquellen

- Klimaanlage w/k

- Fußböden und Bäder in Marmor und mit hochwertigen Fliesen (Porcellanose)

- Warmwasserversorgung kombiniert über Solar und Boiler

- Treppenbelag: Marmor, Granit oder adäquaten Materialien

- Fenster und Außentüren im Veka oder Thyssen - Profil, nach Wunsch coloriert

- Energiespar - Fenster aus Kunststoff mit schlagfester Isolier - Sicherheitsverglasung

- nach Din-Normen - Rolläden elektrisch PVC, oder alternativ, Persianas (Blendläden) aus kunststoffbeschichtetem Aluminium

- offener Kamin im Salon

- Anschluss für Staubsaugergeräte in allen Wohnräumen ( Zentralem Sauger im unteren Geschoss - Haustechnik )

- Aufzug in allen Ebenen

- Einbauschränke in allen Schlafräumen

-
Lagebeschreibung:

- Diese Luxusvilla wird auf einem 3.958 qm großem Grundstück gebaut, und ist das letzte Grundstück in in dieser Grössenordnung, in der 1. Meereslinie.

- 119 qm überdachte Terrassen und einer 50 qm grossen Terrasse mit Pergola

- 250 qm Terrassenflächen in Naturstein oder vergleichbaren Materialien

Details:
Grundstück 3.958 qm,
Wohnfläche 1349 qm auf 3 Etagen
Übersicht:
Wohnzimmer, seperate Küche, Esszimmer, Wirtschaftsraum, Abstellraum, Gästetoilette, Fittnesraum, Sauna, Pool innen,
Schlafzimmer 4, Ankleideraum, Bäder 4 ( En Suite )
Aussenanlagen:
Freiterrassen 270 qm, überdachte Terrassen 119 qm, Dachterrasse 325 qm, Garten, automatische Bewässerung, Schwimminpool 81 qm, Garage 45 qm, Barbecue
Lage:
1. Meereslinie
Fenster:
Kunststoffenster WEKA - Profil oder gleichwertiges, thermische und Sicherheits - Verglasung.
Haustechnik:
Einbauküche, Einbauschränke, Tel.: Anschlüsse, Alarmanlage, SAT - Anlage, automatische Tore, Video Gegensprechanlage,
Solaranlage, Solarthermie,
Heizung:
Fussbodenheizung über Wärmepumpe, Photovoltaik unterstützt, Solarthermie
Böden:
Marmor oder Vergleichbare Materialien
Warmwasser:
Elektrisch, mit solarthermische Unterstützung
Haussicherung:
Videoüberwachte Anlage mit Fernüberwachung und Steuerung
Klima ja ( k / w )
-------------------------------------------------------------------------------------------------------------------------------------------------
-------------------------------------------------------------------------------------------------------------------------------------------------

Neubau-Gästehaus ( Rohbau fertiggestellt ) in 1. Meereslinie in Cala Pi / Vallgornera
Wohn/Nutzfläche 317,28 qm / Grundstück 1.300,76 qm / Terrassen 123,46 qm / 4 Schlafzimmer ( 3 Bäder en Suite ) /
Meerblick ja / Fußbodenheizung ja / Klima k-w ja / Pool ja / Stellplatz ja / Garage ja /

Gesamt Fest - Preis 7.540.000 Euro

 

146B y 147p geplante exclusive Villa Animationen

 
 
   
 
 
 
 
 
 
   
 
 
   
   
 
   
 
 
 
 
 
 
 
 
 
   

146B y147 plus Fotos vom Grundstück und Weitsicht

   
Baufläche planiert
Baufäche unplaniert
Grundstück mit Sicht auf die im Süden liegende Insel Cabrera

146B y147 plus Fotos vom Grundstück und Weitsicht

Sicht vom Haus, Garten und Pool zum Süden und der Insel Cabrera  
Sicht zum Süd - Osten bis Colonia St. Jordi
Freier Blick zum Süd -Westen
Weitblick auf die Vogelschutz - Insel Cabrera
Fläche för das Gebäude
Bebauungsflächen
Aussen - Pool mit Blick auf das Meer und die Insel Cabrera
Überlauf - Pool aussen mit geradem Rand oder alternativ mit geschwungenem Rand
Segelboote im Süd-Westen
Fischerboote vor der Küste
   
 

Insel-Lage Cala Pi - Vallgornera

Im Süden der - Schönsten Strände Mallorca's

Die Region CALA PI/Vallgornera liegt an der Südküste von Mallorca, im Gemeindegebiet von Llucmajor und ist laut Medienberichten einer der künftigen TOP-Standorte.

Die kleine, romantische Sandstrandbucht ist eine vor allem bei Seglern beliebte Bade- und Ankerbucht. Sie vermittelt den Eindruck, als wäre sie vom „Zahn der Zeit des Massentourismusses“ verschont geblieben. Ruhe und weitgehende Unberührtheit zeichnen diese Region aus.

Die CALA PI mit ihrem in verschiedensten Blau- und Türkistönen schimmerndem Wasser ist eine der schönsten Buchten am Rande eines ausgedehnten Pinienwaldes im Süden Mallorcas.

Es gibt auf Mallorca nicht viele Standorte, wie CALA PI, wenn für Ihr zweites Zuhause folgende Faktoren wichtig sind:

Küstenort – Palma- und Flughafennähe – abseits vom Massentourismus – Ruhe, Privatsphäre und Individualität.

Der Ort selber schlängelt sich mit seinen gepflegten Chalets und Villen am Meer entlang. Er verfügt über 3 kleine Supermärkte, 7 Restaurants, einige Bars, und im Club Cala Pi Nou wird das ganze Jahr über Entertainment geboten.

Für GOLFER die optimale Lage: Die MARRIOT Golf-Anlage SON ANTEM in Llucmajor mit ihren 2 Plätzen und der neue Golfplatz MAIORIS gegenüber der noblen Wohnregion PUIG DE ROS – ca. 15 km von Cala Pi in Richtung Palma gelegen - liegen nur 10 – 15 Autominuten entfernt. Ein weiterer Golfplatz entsteht derzeit im 12 km entfernt liegenden SA RAPITA.

Weitere Anziehungspunkte sind die Yachthäfen von S-TANYOL und SA RAPITA. In ca. 20 km Entfernung liegt der wohl schönste Natur-Badestrand Mallorcas – ES TRENC.

Sehr vorteilhaft ist auch die geographische Lage – in nur ca. 30 Minuten ist der Flughafen über eine gut ausgebaute, verkehrsarme Küstenstraße bzw. jetzt auch über die neue Autobahn ab Llucmajor zu erreichen.

 

146B y 147plus Villa - Grundrisse - Pläne

Urbanisation Cala Pi Vallgornera
Im Süd/Westen der Ferieninsel Mallorca
   
 
Lageplan
Unteres - Geschoss
Oberes Geschoss
Keller - Geschoss mit beheiztem Pool, Wellnes - Raum, Gym - Raum, Sauna, Raum für Technik innen und aussen
   
   

146B y 147 plus Gästehaus mit Pool

146B y 147plus - Gästehaus Skizzen u (Grundrisse)

Lageplan
Front links
Front von Meeresseite
   
Obergeschoss
   
Blick von der Strasse
   
Grosser heller Salon mit Austritt auf eine Terrasse ( Pool )
Essplatz mit Zutritt zur Terrasse und Pool
   
   
   
   

146A - in 1. Linie Villa Neubau

Neubau-Villa in 1. Meereslinie in Cala Pi / Vallgornera
Wohn/Nutzfläche 298,00 qm / Grundstück 3.958,00 qm / Terrassen 123 qm / 4 Schlafzimmer ( 3 Bäder en Suite ) /
Gäste - WC, Meerblick ja / Fußbodenheizung ja / Pool ja / Stellplatz ja / Garage ja / Bodenbeläge Keramik können noch gewählt werden/ Fliesen in den Bädern nach Wahl, Scheiben im Erdgeschoss schlagfest,
Terrassentüren im Salon - elektrisch, Tor Einfahrt Grundstück PKW elektrisch mit Fernbedienung, Aussenmauer Front in Bruchstein.